ZESPÓŁ AUTORSKI
Architektura
Generalny Projektant: arch. Jerzy Skrzypczak
Główni Projektanci: arch. Bogusław Chyliński
arch. Andrzej Dzierżawski
arch. Jacek Jedynak
arch. Zbigniew Pawelski
arch. Andrzej Skopiński
arch. Tadeusz Stefański
arch. Halina Świergocka
Konstrukcja
Główny Projektant: dr inż. Zbigniew Pawłowski
Komunikacja:
Główny Projektant: mgr inż. Jan Królikowski
Programowanie:
Główny Projektant: mgr inż. Jan Leher-Spławiński
Infrastruktura:
Główny Projektant: mgr. Inż. Tadeusz Rossman
Instalacje sanitarne:
Główny Projektant: dr. inż. Jacek Wąsowski
Instalacje elektryczne:
Główny Projektant: mgr inż. Jan Janeczko
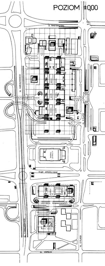
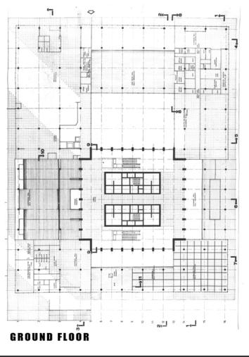
DANE TECHNICZNE
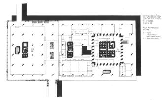
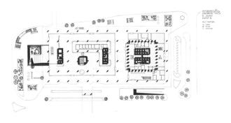
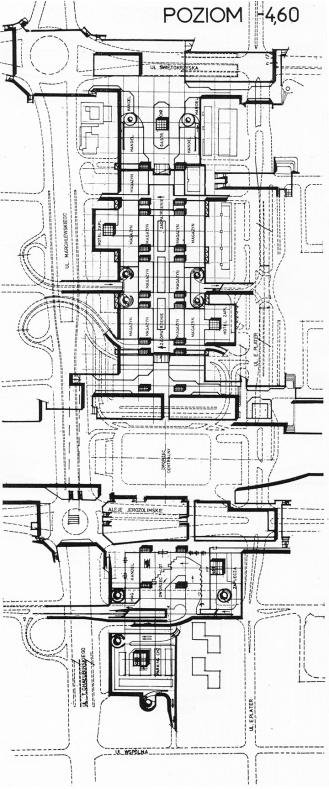
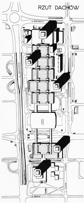
Powierzchnia użytkowa ZRCW: 525 000 m²
Zestawienie kubatur:
Biuro Projektów
Biuro Projektów Budownictwa „WARCENT”.
ZESPÓŁ AUTORSKI
arch. Zdzisław Hryniak
arch. Jacek Jedynak
arch. Jerzy Skrzypczak
arch. Jerzy Zawistowski
Komunikacja:
inż. Jan Królikowski
Zieleń:
inż. Barbara Tuchowska
ZESPÓŁ AUTORSKI
Architektura
arch. Jerzy Skrzypczak
arch. Halina Świergocka-Kaim
arch. Wojciech Grzybowicz
arch. Jerzy Janczak (współpraca autorska)
arch. Jan Zdanowicz(współpraca autorska)
Konstrukcja
dr inż. Anna Chrabczyńska
prof. dr hab. Józef Sieczkowski
Dane techniczne:
Biura Projektowe
Miejskie Biuro Projektów „ WARCENT” SA - Warszawa
BPA Bygproduktion AB – Sztokholm
Inwestor:
PHZ INTRACO
ZESPÓŁ AUTORSKI
Architektura
arch. Andrzej Bielobradek.
arch. Jerzy Skrzypczak
arch. Tadeusz Stefański
Współpraca w II etapie realizacji
arch. E. Majorinc, arch. J. Targowski
Konstrukcja
dr inż. Anna Chrabczyńska
prof. dr hab. Józef Sieczkowski
Biura Projektowe
Miejskie Biuro Projektów „WARCENT” SA
ILBAU – Wiedeń
Cementation International Limited - Generalny Wykonawca
Inwestor
PLL LOT - I etap
LIM CENTER (LOT, ILBAU, MARRIOTT) - II etap
Dane techniczne:
ZESPÓŁ AUTORSKI
arch. Wojciech Hermanowicz
arch. Jerzy Janczak
arch. Jerzy Skrzypczak
arch. Halina Świergocka-Kaim
arch. Tadeusz Szumielewicz
ZESPÓŁ AUTORSKI
arch. Jerzy Janczak
arch. Jerzy Skrzypczak
Dane techniczne:
Biuro Projektów
Miejskie Biuro Projektów „WARCENT” S.A.
Inwestor
PHZ DROMEX
ZESPÓŁ AUTORSKI
Architektura
arch. Jerzy Skrzypczak
arch. Andrzej Darski
arch. Wojciech Bagiński
Konstrukcja
dr inż. Anna Chrabczyńska
prof. dr hab. Józef Sieczkowski
Dane techniczne:
Biuro Projektów
Miejskie Biuro Projektów „WARCENT” S.A
PORR. Wiedeń
Inwestor
PHZ „PEWEX”
ZESPÓŁ AUTORSKI
arch. Jerzy Janczak
arch. Maciej Piechotka
arch. Jerzy Skrzypczak
arch. Andrzej Darski
współpraca projektowa
arch. Mieczysław Zientarski
Konstrukcja
mgr inż. Witold Rybiński
mgr inż. Marek Dobrowolski
Dane techniczne:
Biuro Projektów
Miejskie Biuro Projektów „WARCENT” S.A
Inwestor
PBank Ochrony Środowiska
Materiały użyte do budowy strony pochodzą ze zbiorów archiwalnych autorów oraz BPA J&J. Autorami rysunków są:
Krzysztof Brzeziński, Adam Horodyński, Maciej Kalinowski, Tomasz Lechowski, Marek Młodecki, Dariusz Stasiak, Witold Wiśniewski. Autorami renderingów są: GMS-Studio, FAMA, Artur Mateńko.
Zdjęcia: Andrzej Pisarski, Marcin Czechowicz – Murator
Projekty BPA J&J oraz wszelkie materiały zawarte na stronie BPA J&J chronione są prawem autorskim.